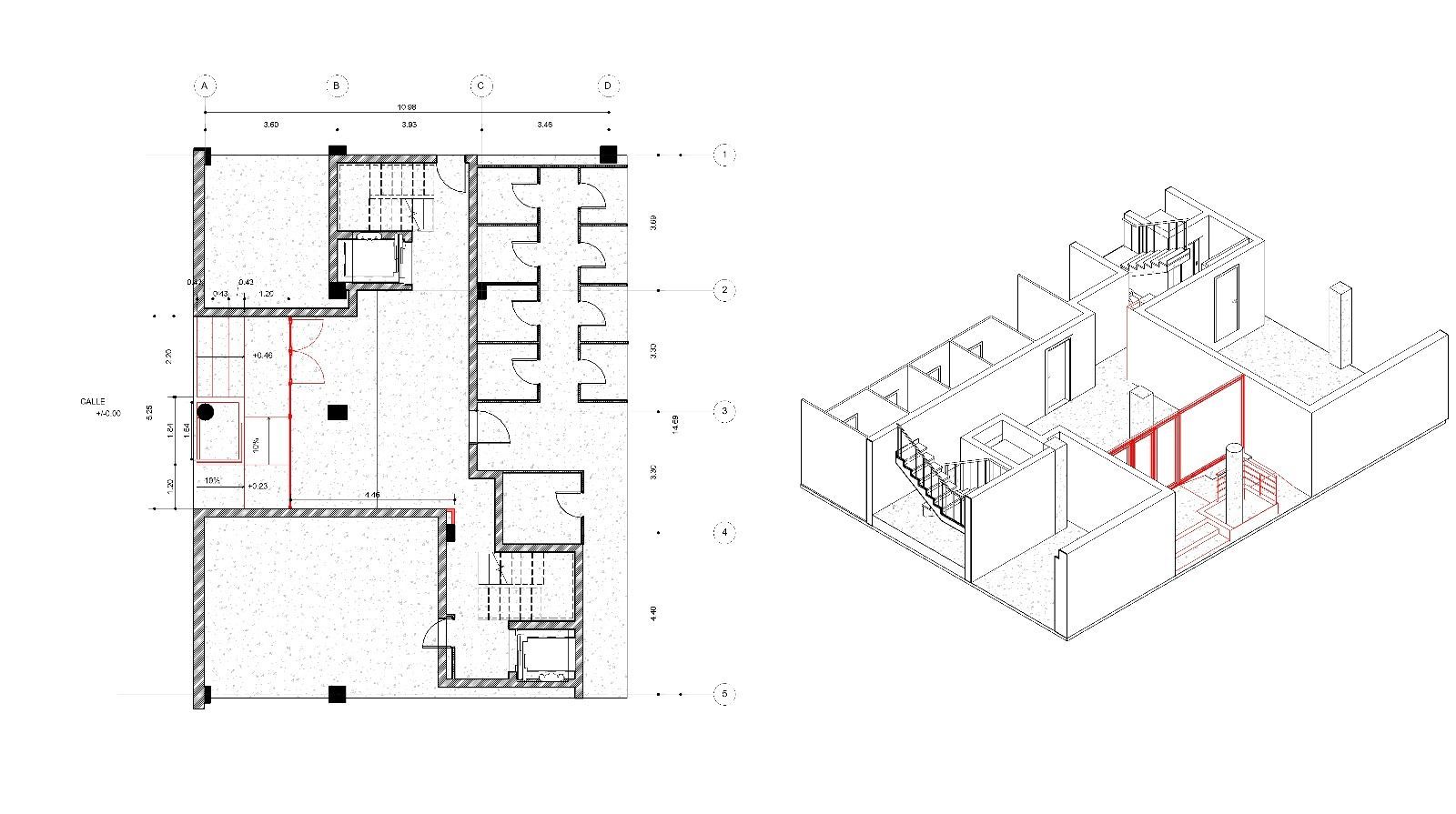
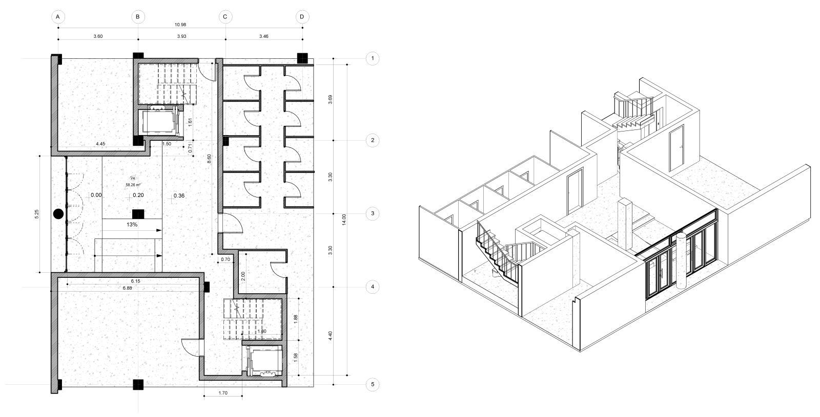
Vestíbulo Marina – 
Reforma Integral en el Paseo Marítimo de Calafell
 
Hemos transformado el vestíbulo del edificio Marina para crear un espacio accesible, elegante y lleno de luz. Cada detalle se ha cuidado para ofrecer una experiencia acogedora desde el primer momento:
La madera tratada aporta calidez y un toque natural, mientras resiste la humedad propia del entorno marítimo.
La piedra natural en suelos y superficies genera un ambiente orgánico y sofisticado.
Los colores claros y suaves amplían la sensación de luminosidad y serenidad, creando un entorno relajante para todos los usuarios.
Esta reforma no solo mejora la accesibilidad y funcionalidad del vestíbulo, sino que también ofrece un diseño contemporáneo y armonioso, cumpliendo con el Codi d’Accessibilitat de Catalunya. Un espacio pensado para recibir a cada persona con comodidad y estilo.
 
 








